SH-213-575

Продам 2-этажный дом

Местоположение: Киев, Святошинский район, Берковец, Берковецкая ул.
4 Комнат
100 м2
6 сот.
Цена
64 900 $

Информация

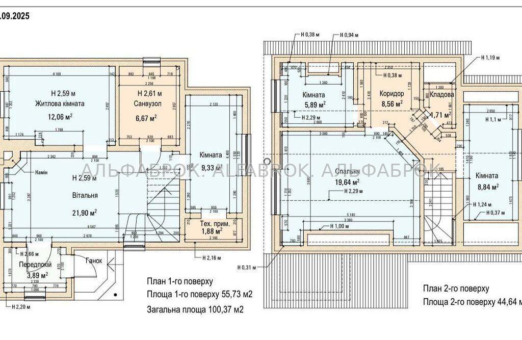
Земельна ділянка 6 соток з будинком 100 м² біля ТРЦ Lavina Mall Київ. Вул. Берковецька. Садове товариство «Мальовниче» раніше називалося « 40 річчя Жовтня» Пропонується до продажу земельна ділянка площею 6 соток правильної форми, біля чудової локації всього 300 метрів до ТРЦ «Лавіна» та 15 хвилин до метро «Академмістечко». Закрита територія Садового Товариства, охороняється. В'їзд через шлагбаум. На ділянці розташований двоповерховий будинок площею 100 м², споруда з газоблоку. Будинок утеплений зсередини скловатою, а ззовні мінеральною ватою, що забезпечує можливість комфортного проживання цілий рік. Основні характеристики будинку: перекриття дерев'яні, утеплена стяжка (керамзит + стеродур), заведено 3 фази, 10 кВт електроенергії (можливість збільшення до 16, 5 кВт, газ проходить по вулиці, власна свердловина чиста, прозора вода з гарними показниками якості). У будинку велика гостина, кухня з коморою, 4и кімнати, місце під гардеробну, є вихід на горище. Зроблений частково ремонт. Встановлені дерев'яні сходи на другий поверх, функціонуючий камін, електрокотел, бойлер. Частково є меблі. Локація: Тиха, зелена вулиця з зручною транспортною розв'язкою та розвиненою інфраструктурою поруч школа, магазини, ТРЦ Lavina Mall, громадський транспорт.

64 900 $ стоимость объекта
649 $ цена за м2
100 м2
6 сот.
4 комнат
2 Этажность

Параметры

возможность газификации Газ:
газоблок Материал стен:

Дополнительная информация

Дата обновления информации: 10.10.2025 13:22;