Персональный сайт риелтора

рієлтор - Ірина

Вітаю! Буду рада допомогти з купівлею чи продажем нерухомості. Телефонуйте!
АН Альфаброк працює з 2008р. Маємо свою Торгівельну Марку «Альфаброк». В нашій базі більше 6 000 унікальних, не дублюючих об’єктів. Більше 10 років займаюсь купівлею та продажем нерухомості. Буду рада докласти всі зусилля, навики та весь свій досвід. Перевіримо документи перед угодою! Телефонуйте.
SF-3-234-081

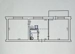
Продам 2-комнатную квартиру

Местоположение: Киев, Оболонский район, Оболонь, Героев Днепра ул., 25
2 Комнат
38 м2
1/9 этаж
Цена
71 000 $

Информация

Продам 2-кімнатну квартиру Героїв Дніпра 25 (Оболонський район) 7 хв до метро Героїв Дніпра. Загальна площа квартири - 38 м Кухня - 5м. В квартирі замінена електрика, вікна, двері, сантехніка. Зроблений ремонт на балконі з утепленням. Є бойлер, холодильник, газова піч, телевізор. Вся техніка і меблі залишаються. Додатково встановлена система яка при відключені світла дозволяє живити квартиру. Біля будинку є дитячий садок, супермаркети, пошта, аптеки.
Один власник, більше 3х років.

71 000 $ стоимость объекта
1 868 $ цена за м2
38 м2
2 комнат
1 Этаж
9 Этажность

Параметры

центральная Вода:
центральное Отопление:

Дополнительная информация

Дата обновления информации: 09.03.2026 16:33;