Продам 4-этажный дом
Информация
		ПРОДАЕМ новый дом под чистовую отделку  290 м кв и еще  56 м кв (1/2 старого дома) + учсток  3 сотки! Земля приватизирована, отдельный кадастровый номер. 
Новый дом строили в конце участка, без привязки к старому, старый дом можно снести, он одной стенкой (не капитальной) граничит с соседями, в нем жилой обычный ремонт. 
Отдельно стоящий новый дом: 290 кв.м. с грамотной планировкой
Первый этаж: гараж (18 кв.м., Н - 2.1. м.) со смотровой ямой, кладовая (7.13 кв.м., Н – 2.1. м.), прихожая (16.1 кв.м.), кухня (17.4 кв.м.), санузел, котельная (4.06 кв.м.) с установленным и подключенным газовым котлом  Vissman , подвал (17.4 кв.м.) под кухней. 
Второй этаж: каминный зал (44.46 кв.м., Н-3 м.),  кабинет (24.18 кв.м., Н-3.7 м). 
Действующий большой камин (можно отапливать часть дома). 
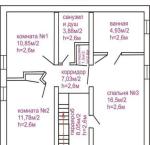
Третий этаж: две детские спальни (1 - 10.85 кв.м., 2 – 11.78 кв.м.), душ-туалет-умывальник (3.88 кв.м.), уже установлены и подключены. 
Взрослая спальня (16.5 кв.м.), ванная комната (4.93 кв.м.), ванна, умывальник, унитаз (все подключено), гардероб (8.05 кв.м.), встроенные шкафы, кладовка (1.5 кв.м.) на этаже, коридор (7.03 кв.м.). Высота помещений - 2.60 м. 
Очень хорошее место для жизни в Киеве. Тишина, пение птиц, чистый воздух. Есть качественный проект внутренних интерьерных работ и фасадного обогащения в 3-D. 
Площадь 1/2 дома 56 кв.м. Две комнаты смежно-раздельные, кухня, прихожая, санузел (душевая). Отопление котел газовый, электричество (двухзонный счетчик), вода, канализация (новая, отдельная) централизованы, бойлер . Состояние жилое. Скоростной интернет.
Идея была снести часть старого дома, чтоб был прямой заезд в гараж нового, это все легко реализуется, покажем проект.  Торг при просмотре - звоните, показы в удобное для Вас время! 
	
 
	 
 
 
 
 
 
 
 
 
 
 
 
 
 
 
 
 
 
 
 
 
 
 
 
 
 
 
 
 
 
 
 
 
 
 
 
 
 
 
 
 
 
 
 
 
 
 
 
 
 
 
 
 
 
 
 
 
 
 
 
 
 
 
 
 
 
 
 
 
 
 
