Персональный сайт риелтора

рієлтор - Лариса

Вітаю Вас. Телефонуйте, у нас найбільший каталог нерухомості.
АН Альфаброк работает на рынке с 2008г. Зарегистрирована своя Торговая Марка Альфаброк! В нашей базе более 5 000 уникальных, не повторяющихся объектов.
Я давно занимаюсь покупкой, продажей и арендой недвижимости. Буду рада приложить все свои навыки и опыт. Проверим документы перед сделкой!
SF-3-213-633

Продам 2-комнатную квартиру

Местоположение: Киев, Шевченковский район, Сырец, Владимира Сальского ул., 31
2 Комнат
43 м2
4/5 этаж
Цена
53 000 $

Информация

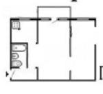
В продажу двокімнатна квартира в пару хвилинах пішого ходу від метро Сирець. Будинок цегляний 1969 року, типу хрущівка. Поряд ліс, парк Сирецький Гай. Дуже багато зелені, бювет з джерельною водою. Квартира потребує капітального ремонту, одна кімната прохідна, є можливість ізолювати при бажанні. Санвузол роздільний. Четвертий поверх. Під'їзд в задовільному стані

53 000 $ стоимость объекта
1 233 $ цена за м2
43 м2
2 комнат
4 Этаж
5 Этажность

Параметры

центральная Вода:
центральное Отопление:
кирпич Материал стен:

Дополнительная информация

Дата обновления информации: 08.10.2025 16:22;