Це оголошення тимчасово відкладено власником

SC-129-994

Продам офіс у багатоквартирному будинку

Розташування: Київ, Чернігівська, Дніпровський район, Соцмісто, Поправки Юрія вул., 4/39А
3 Кімнат
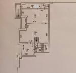
99 м2
0/23 Цоколь
Ціна
165 000 $

Інформація

Днепровский район. Соцгород . Лучшее предложение ! Эксклюзив. Продажа помещения 100 м.кв. в новом доме 2012 года, ул. Красноткацкая 39 А /ул. Юрия Поправки 4 , метро 7 минут. Цокольный этаж, два окна, отдельный вход и запасный , высота потолка 2,9 м, офисный качественный ремонт, мебель, два санузла, оборудованная кухня и зона отдыха, двухкамерные стеклопакеты, автономное отопление, усиление для мобильной связи, сигнализация, парковка , есть небольшое помещение для охраны, архива и т.д. над офисом. Все коммуникации, удобная транспортная развязка, близость двух метро Черниговская и Дарница. Отличное предложение цена-качество.

Інфраструктура

Громадський транспорт: метро - Чернігівська (5 хв. пішки);
Заклади освіти: школа, дитсадок;
Банківськи послуги: відділення банку, банкомат, термінал прийому платежів, пункт обміну валют;
Побутовий сервіс: супермаркет, торгівельний центр, парковка перед будинком, аптека, клініка, перукарня, хімчистка;
Релаксаційні сервіси: фітнес центр, басейн, парк (сад);
Обʼєкти громадського харчування: кафе, ресторан;
165 000 $ вартість об'єкта
1 672 $ ціна за м2
98.70 м2
3 Приміщень
23 К-ть поверхів

Параметри

центральна Вода:
немає Газ:
електричне Опалення:
центральна Каналізація:
холодна вода, гаряча вода Лічильники:
2.7 Висота стелі:
моноліто-каркас Матеріал стін:
залізобетон Матеріал перекриттів:
асфальт Під’їздна дорога:

Доброустрій

Краєвид із вікна: вулиця;
Безпека: домофон, пожежна сигналізація, охоронна сигналізація;

Додатково

Зона: житлова;
Власність: приватна;
Дата оновлення інформації: 22.03.2023 18:43;