Інформація в цьому оголошенні застаріла

SC-172-339

Продам офіс у багатоквартирному будинку

Розташування: Київ, Дарницький район, Позняки, Княжий Затон вул., 20
3 Кімнат
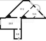
69 м2
24/24 поверх
Ціна
85 000 $

Інформація

Продається просторий закритий офіс за адресою Княжий Затон 20 . Цей офіс ідеально підходить для вашого бізнесу, і ось декілька переваг цієї пропозиції:

Розташування: Офіс розташований на 24 поверсі у 24 поверховому новому та сучасному будинку бізнес-класу, що надає йому престижу та сучасного обладнання. Розташування поруч із школою, дитячим садком, магазинами та розвагами створює комфортні умови для роботи .

Інфраструктура будинку: У будинку є ліфти, паркінг, система відеоспостереження та консьєрж. Для комфорту мешканців створено упорядкований двір і дитячі майданчики.

Доступність: Цей район легко доступний і має хорошу транспортну розв'язку, поруч такі вулиці: вул. Софії Русової – вул. Єлизавети Чавдар - М "ОСОКОРКИ" - Дніпровська набережна - вул. Княжий Затон – вул. Урлівська – просп. Петра Григоренка – вул. Тепловозна – Харківське шосе – пл. Дарницька – пр. Соборності – вул. Євгена Сверстюка (залізнична зуп. Київська Русанівка) - вул. МІТРОПОЛІТА АНДРЕЯ ШЕПТИЦЬКОГО (М "ЛІВОБЕРЕЖНА")Недалеко до станції метро Осокорки, і поруч є озеро Срібний Кіл, озеро Качине та Парк "Позняки" для відпочинку після робочого дня.

Стан: Офіс можна придбати без меблів, але вже з встановленими кондиціонерами та підключеним інтернетом, що дозволяє вам швидко розпочати роботу.

Ця нерухомість пропонує ідеальний простір для вашого бізнесу в сучасному та комфортному середовищі. Не соромтесь зв'язатися для отримання додаткової інформації або для організації перегляду цього офісу.





85 000 $ вартість об'єкта
1 232 $ ціна за м2
69 м2
3 Приміщень
24 К-ть поверхів

Параметри

центральна Вода:
немає Газ:
центральне Опалення:
центральна Каналізація:
холодна вода, гаряча вода, опалення Лічильники:

Додатково

Дата оновлення інформації: 04.12.2023 17:40;