Це оголошення тимчасово відкладено власником

RF-2-379-632

Здам 3-кімнатну квартиру, ЖК Дипломат Хол

Розташування: Київ, Університет, Голосіївський район, Центр (Голосіївський), Жилянська вул., 59
3 Кімнат
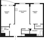
110 м2
9/14 поверх
Ціна
700 $

Інформація

Аренда 3-комнатной квартиры в Голосеевском районе, ЖК «Дипломат Холл»
Станция метро Университет в 10 минутах пешком.
Общая площадь 110 м², кухня 40м²
9-й этаж из 14
Уютная квартира с евроремонтом, укомплектована мебелями.
Бытовая техника: холодильник, варочная панель, вытяжка, микроволновая печь, посудомоечная машина, электрочайник, стиральная машина, сушильная машина, утюг, пылесос, утюг.
Мультимедиа: Wi-Fi, телевизор, спутниковое ТБ.
Комфорт: кондиционер, балкон, лоджия, ванна, душевая кабина.
Безопасность: консьерж, лифт, пожарная сигнализация, подземный паркинг, гостевой паркинг, подогрев полов, охраняемая территория.
В квартире есть всё необходимое для жизни.
Без животных, можно с детьми старше 7 лет, можно иностранцам.
Дополнительно плата по счетчикам и за отопление.
Оплата за первый и залог за последний месяц.

Інфраструктура

Громадський транспорт: метро - Університет (10 хв. пішки, 5 хв. на транспорті);
Банківськи послуги: відділення банку, банкомат;
Побутовий сервіс: мінімаркет, супермаркет, аптека;
Релаксаційні сервіси: дитячий майданчик;
Обʼєкти громадського харчування: кафе, ресторан;
700 $ вартість об'єкта
6 $ ціна за м2
110 м2
3 кімнат
9 Поверх
14 К-ть поверхів

Параметри

цегла Матеріал стін:

Доброустрій

Побутова техніка: телевізор, мікрохвильова піч, холодильник, посудомийна машина, електрочайник, пральна машина в санвузлі, пилосмок;
Додатково: джакузі, меблі, Wi-Fi;
Безпека: консьєрж, пожежна сигналізація, охорона території;

Додатково

Вимоги до наймачів: можна з дітьми, можна іноземцям;
Домашні тварини: Заборонено з тваринами;
Дата оновлення інформації: 21.09.2022 11:16;