Це оголошення тимчасово відкладено власником

SF-1-582-075

Продам 2-кімнатну квартиру

Розташування: Київ, Лук'янівська, Шевченківський район, Лук'янівка, Білоруська вул., 23
2 Кімнат
44 м2
8/9 поверх
Ціна
83 000 $

Інформація

Продается интересная Двухсторонняя 2-комнатная квартира в тихом, зеленом районе по ул. Белорусская, 23 (Шевченковский р-н, ЦЕНТР Киева).

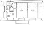
Общая площадь квартиры 44,40 м2, жилая 28,50 м2 с выходом на Балкон, Кухня 6,70 м2.
Расположена на 8 этаже 9 этажного кирпичного дома. Квартира экономичная, светлая и комфортная, где присутствует ощущение домашнего уюта. В Квартире рациональная планировка, комнаты удобные, раздельные и просторные, с потрясающим видом из окон на 2 стороны: во двор и на улицу(пейзажи природы города). В квартире выполнен хороший Частичный Косметический ремонт (Жилое состояние), установлены домофон, Бойлер. Квартира укомплектована необходимой мебелью и бытовой техникой.
В Доме Централизованное отопление, поэтому будет всегда тепло. Комфортное проживание Вам обеспечит новый лифт OTIS, Чистый подъезд, хороший Тихий двор, парковка, остановка транспорта рядом с домом. В пешей доступности от Дома расположены рынок «Лукьяновский», школы, детский садик, во дворе зона для отдыха с детской и спортивной площадками, которые создают комфортную среду для воспитания детей. Квартира в этом доме будет пользоваться огромным интересом при возможной дальнейшей сдаче квартиры в аренду.
До ближайшего метро "Лукьяновская" - 7 минут пешком.
Комиссию АН оплачивает Покупатель.
Хватит платить за чужие мечты, воплощайте в жизнь свои собственные!
ДОКУМЕНТЫ НА ПРАВО СОБСТВЕННОСТИ НА РУКАХ.

Інфраструктура

Громадський транспорт: метро - Лук'янівська (7 хв. пішки);
Заклади освіти: школа, дитсадок;
Банківськи послуги: відділення банку, банкомат, термінал прийому платежів, пункт обміну валют;
Побутовий сервіс: мінімаркет, супермаркет, торгівельний центр, ринок, парковка перед будинком, аптека, клініка, перукарня, пошта;
Релаксаційні сервіси: парк (сад), дитячий майданчик;
83 000 $ вартість об'єкта
1 869 $ ціна за м2
44.40 м2
2 кімнат
8 Поверх
9 К-ть поверхів

Параметри

центральна Вода:
є Газ:
центральне Опалення:
холодна вода, гаряча вода Лічильники:
цегла Матеріал стін:

Доброустрій

Краєвид із вікна: двір, вулиця;
Безпека: домофон, кодовий замок;

Додатково

ДОКУМЕНТЫ НА ПРАВО СОБСТВЕННОСТИ НА РУКАХ.

Власність: приватна;
Дата оновлення інформації: 12.12.2022 14:07;