Це оголошення уже закрито

SF-2-260-554

Продам 1-кімнатну квартиру в новобудові, ЖК Нивки Парк

Розташування: Київ, Нивки, Святошинський район, Святошин, Берестейский пр-т, 67
1 Кімнат
36 м2
7/16 поверх
Ціна
87 000 $

Інформація

Продажа квартиры в ЖК «Нивки Парк». Застройщик – «Интергалбуд», ввод в эксплуатацию – 2020 год, размещенный во дворе, на третьей линии от проспекта Победы. Уютное место – полное отсутствие транспортного шума.
Расстояние до метро – 600 метров (7 мин ходьбы). Пора доехать до центра Киева – 20 минут.
ЖК «Нивки Парк» - жилой квартал, имеющий закрытую территорию и социальную инфраструктуру – детские и спортивные площадки, супермаркеты, банки, Макдональдз (плюс, в перспективе – создание медицинского учреждения и спортивного клуба).
Расстояние до пожарной части – 600 метров. Рядом с домом – учебное заведение (детский сад + начальная школа). Отсутствие вблизи промышленных предприятий.
Современный просторный холл в подъезде. Консьерж, охрана, видеонаблюдение. Надземный паркинг.
О квартире 36.2 кв.м - оптимальный размер для одиночки или молодой пары, экономия на коммунальных расходах. 7й этаж, постоянно работающие 2 быстрых лифта «Отис»
НЕ угловая теплая квартира – экономия на отоплении зимой. Панорамные окна, застекленный балкон, смотрят на восход, солнце в квартире – с 8:00 до 13:00.
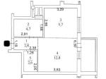
Вид из окна – промзона, территория перспективной застройки (планируется 3-этажное админ здание, где будет размещен медицинский центр и спорт клуб). Высота потолков – 2,70 м (от пола до потолка). В квартире – одна комната с кухней (22,5 кв.м), коридор (2,8 кв.м), ванная (4,7 кв.м) , гардероб (2,6 кв м), балкон (4,5 кв.м). На полу – паркетная доска, на кухне и на балконе – плитка. Счетчики воды, электричества и отопления. Выгодная инвестиция – идеальный вариант для возможной сдачи жилья в аренду
Квартира продается со всей мебелью и техникой, их стоимость включена в цену квартиры.
Мебель и техника в квартире: кухня, электроплита, вытяжка, микроволновка, холодильник, стиральная машина, бойлер, кондиционер, телевизор, кровать (160 на 200) с матрасом, стол, стулья, посуда

Інфраструктура

Громадський транспорт: метро - Нивки (15 хв. пішки, 15 хв. на транспорті);
Заклади освіти: школа, дитсадок;
Банківськи послуги: відділення банку, банкомат, термінал прийому платежів, пункт обміну валют;
Побутовий сервіс: мінімаркет, супермаркет, торгівельний центр, ринок, парковка перед будинком, аптека, клініка, перукарня, пошта, хімчистка;
Релаксаційні сервіси: фітнес центр, парк (сад), дитячий майданчик;
Обʼєкти громадського харчування: кафе, ресторан, фастфуд, їдальня, бар;
87 000 $ вартість об'єкта
2 403 $ ціна за м2
36.20 м2
1 кімнат
7 Поверх
16 К-ть поверхів

Параметри

центральна Вода:
немає Газ:
центральне Опалення:
холодна вода, гаряча вода, опалення Лічильники:
виділена лінія Інтернет:
кабельне ТБ Телебачення:

Доброустрій

Кондиціювання: спліт-системи;
Водонагрівач: електричний;
Побутова техніка: плазмовий телевізор, електроплита, мікрохвильова піч, духовка електрична, холодильник, витяжка, пральна машина в санвузлі;
Додатково: меблі, Wi-Fi;
Безпека: консьєрж, домофон, кодовий замок, відеонагляд, охорона території;

Додатково

Власність: приватна;
Дата оновлення інформації: 31.08.2022 11:17;