SF-2-434-703

Продам 2-кімнатну квартиру

Розташування: Київ, Подільський район, Куренівка (Подільський), Автозаводська вул., 72
2 Кімнат
67 м2
17/25 поверх
Ціна
60 000 $

Інформація

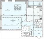
Продаж 2к. квартири в ЖК «Бережанський», Оболонський район, 8 будинок. Будинок введений в експлуатацію. Присвоєна адреса – вул. Автозаводська, 72Б. Двокімнатна квартира розташована на 17 поверсі 25 поверхового будинку. Загальна площа квартири складає 67 м2, житлова – 36.6 м2, площа кухні – 11 м2, кухня з заскленою лоджією, 2 роздільні кімнати, 2 санвузла, простора прихожа. Квартира двостороння на північ і захід – не спекотно літом, та можливо споглядати захід сонця кожного дня. Виконана якісна машина стяжка стін, заведена електрика, встановлені лычиьники, якісні двері, склопакети WDS. Будинок побудований по монолітно – каркасній технології, кладка стін виконана червоною цеглою, зовнішнє утеплення – мінеральна вата. Висота стелі – 2.7м. Кожний будинок комплексу має власну автономну котельну, 3 ліфта – грузовий та 2 пасажирських. Клас будинку – комфорт. Підземний паркінг – 400 авто, наземний -150. Недалеко від ЖК розташована набережна р.Дніпро з накращим у місті парком «Наталка», сосновий ліс на Виноградарі, Пуща Водиця з озерами и великим лісовим масивом. Поруч магазини «Епіцентр» та «Leroy Merlin, в 10 хв. – ТРЦ «Караван» та «Dream Town». До найближчої станції метро «Мінська» - 15 хвилин громадським транспортом. Оболонсько-Теремківська лінія (Теремки - Іподром - Виставковий центр - Васильківська - Голосіївська - Деміївська - Либідська - Палац "Україна" - Олімпійська - Площа Льва Толстого - Майдан Незалежності - Поштова площа - Контрактова площа - Тараса Шевченка - Петрівка - Оболонь - Мінська - Героїв Дніпра).

60 000 $ вартість об'єкта
896 $ ціна за м2
67 м2
2 кімнат
17 Поверх
25 К-ть поверхів

Параметри

центральна Вода:
центральне Опалення:

Додатково

Дата оновлення інформації: 30.01.2026 22:37;