SF-3-115-311

Продам 1-кімнатну квартиру

Розташування: Київ, Осокорки, Дарницький район, Позняки, Клеманська вул., 1
1 Кімнат
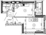
38 м2
19/26 поверх
Ціна
25 000 $

Інформація

Продам квартиру 1 кому, 19 та 23 поверх. Квартира в сучасному ЖК із закритою територією. Поруч: школа, садок, супермаркет, магазини, спорт зали, найближче метро позняки, осокорки, Лівобережна.
Найкраща ціна 2025!

Інфраструктура

Громадський транспорт: метро - Осокорки (45 хв. пішки, 25 хв. на транспорті);
25 000 $ вартість об'єкта
658 $ ціна за м2
38 м2
1 кімнат
19 Поверх
26 К-ть поверхів

Параметри

центральна Вода:
центральне Опалення:

Додатково

Дата оновлення інформації: 11.04.2025 20:03;