SF-3-120-096

Продам 1-кімнатну квартиру

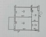
Розташування: Київ, Теремки, Голосіївський район, Феофанія, Метрологічна вул., 109
1 Кімнат
42 м2
6/9 поверх
Ціна
67 000 $

Інформація

Видова квартирав ЖК Кришталеві джерела,парк Феофанія, white box.
Вже зроблено:
• розведено та підключено електрику по точках, електрощит зібрано (Hager);
• влаштована електрична тепла підлога в кухонній зоні, санвузлі, коридорі;
• повністю проведені сантехнічні роботи: встановлена інсталяція Geberit, гігієнічний душ, змонтований душовий піддон з підігрівом, передбачене місце для бойлера, пральної машини, рушникосушарки, посудомийної машини;
• прокладено трасу кондиціонера;
• стіни підготовлені до фарбування, шпакльовані та армовані склополотном;
• у квартирі виконано сучасне вирівнювання підлоги за технологією наливної підлоги, що забезпечує ідеально гладку та міцну поверхню;
• продумане планування: простора кухня дозволяє розмістити зону відпочинку з диваном, що дає можливість облаштувати кухню-студію;
• опалення централізоване з власною котельною та встановлено лічильник тепла, також заведений газ до варильної поверхні.

Квартира повністю підготовлена до фінального етапу ремонту – залишилося лише виконати декоративне оздоблення: фарбування стін, укладання ламінату або плитки та облаштування меблями на свій смак.

Інфраструктура

Громадський транспорт: метро - Теремки (50 хв. пішки, 45 хв. на транспорті);
67 000 $ вартість об'єкта
1 595 $ ціна за м2
42 м2
1 кімнат
6 Поверх
9 К-ть поверхів

Параметри

центральна Вода:
центральне Опалення:

Додатково

Дата оновлення інформації: 08.10.2025 22:36;