SF-3-150-270

Продам 3-кімнатну квартиру

Розташування: Київ, Деснянський район, Троєщина, Олександри Екстер вул., 5
3 Кімнат
96 м2
21/22 поверх
Ціна
100 000 $

Інформація

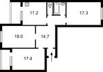
Троєщина, олександри Екстер 5. Продаж 3х кімнатної квартири, АППС люкс 2007 року, розташована на 21 поверсі/22 пов.будинку, на поверсі спільні двері з сусідами, що замикаються на ключ. Загальна площа - 96,2 кв.м., житлова - 53 кв.м., кухня обєднана з балконом, санвузол спільний, велика утеплена лоджия. Раціональне планування квартири довершено якісним стильним ремонтом з використанням високоякісних матеріалів, обладнання підлоги, стін та стелі. Квартира облаштована вбудованими кухонними меблями та побутовою технікою , місткими шафами – купе, інші меблі. Наявні зручності: - Тепла підлога; - Кондиціонери (кухня і спальня); - Великий бойлер; - Система очищення води. - На поверсі є особиста комора. -Поряд с домом стоянка. В будинку присутній сервіс конс'єржа. Добре розвинута інфраструктура, в пішій доступності є все для комфортного проживання: супермаркети, ринок, школи, дит.садки, магазини, відділення банків, салони, спортивні клуби, поліклініка, парк з великим дитячим майданчиком. Зручна транспортна розв’язка у різні кінці Києва.

100 000 $ вартість об'єкта
1 040 $ ціна за м2
96.20 м2
3 кімнат
21 Поверх
22 К-ть поверхів

Параметри

центральна Вода:
центральне Опалення:
панель Матеріал стін:

Додатково

Дата оновлення інформації: 01.08.2025 23:11;