SF-3-163-108

Продам 2-кімнатну квартиру

Розташування: Київ, Либідська, Голосіївський район, Пирогів, Науки пр-т
2 Кімнат
76 м2
16/25 поверх
Ціна
100 000 $

Інформація

Продаж 2-кімнатної квартири в Голосіївському районі

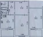
Пропонується до продажу затишна, функціональна 2-кімнатна квартира з панорамним видом на Дніпро та Лівий берег. Квартира розташована на 16-му поверсі 25-поверхового будинку зведеного у 2016 році за принципом термодому з вентильованим фасадом. Влітку — прохолодно, взимку — тепло.

Планування та зручності:
– Дві окремі кімнати
– Простора кухня
– Коридор-вітальня
– Два балкони: один обладнаний під робочий кабінет, інший — комфортна релакс-зона з краєвидом
– Окремі ванна кімната та туалет

Обладнання та меблі:
– Повністю оснащена ванна: ванна, умивальник, бойлер, пральна машина
– 3 великі шафи-купе, місткий комод
– Велике ліжко з ортопедичним матрацем, розкладний диван
– Кондиціонери в кімнатах
– Сучасний телевізор Samsung
– Кухня укомплектована всією побутовою технікою
– Встановлені лічильники на воду, тепло та електроенергію, з можливістю регулювання теплопостачання

Будинок та інфраструктура:
– 2 пасажирські та 1 вантажний ліфт
– Консьєрж у під’їзді
– Дитячий майданчик на території ЖК
– Стоянка навпроти з доступною вартістю
– В пішій доступності: супермаркети (Фора — 1 хв, АТБ — 5 хв), аптеки, поштові відділення, садочки, школа
– 10 хв на авто до метро Либідська чи Деміївська
– Поблизу — Голосіївський ліс, озера, монастирі, пляжі Дніпра

Квартира у відмінному стані, з документами більше трьох років. Готова до проживання без додаткових вкладень.

Інфраструктура

Громадський транспорт: метро - Либідська (10 хв. на транспорті);
100 000 $ вартість об'єкта
1 316 $ ціна за м2
76 м2
2 кімнат
16 Поверх
25 К-ть поверхів

Параметри

центральна Вода:
автономне Опалення:
панель Матеріал стін:

Додатково

Дата оновлення інформації: 30.01.2026 22:44;