SF-3-216-791

Продам 1-кімнатну квартиру

Розташування: Київ, Голосіївський район, Пирогів, Павла Лі пров.
1 Кімнат
65 м2
5/6 поверх
Ціна
29 500 $

Інформація

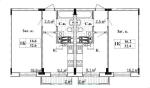
Продаються дві сусідні однокімнатні квартири на п’ятому поверсі 6-поверхового будинку. ЖК «Чемпіон», перейменований в ЖК «Нова Оселя». Можуть буті обʼєднані в одну трьохкімнатну квартиру. Площа 32,6 (житлова … кв.м) та 32,4 (житлова … кв.м) кв. м, разом 65 кв. м. Без ремонту, введено в єксплуатацію, є електроенергія, готові до початку ремонту. (Про «труднощі» я б не писав) Адреса: м. Київ, пров. Павла Лі, 2Е. Зручне розташування- близько до станції метро Васильківська, поряд супермаркети, школи, дитячий садочок, зручна розв’язка до центру Києва. Вартість 59000$ за дві, можливий продаж по одній

29 500 $ вартість об'єкта
454 $ ціна за м2
65 м2
1 кімнат
5 Поверх
6 К-ть поверхів

Параметри

центральна Вода:
центральне Опалення:
газоблок Матеріал стін:

Додатково

Дата оновлення інформації: 08.10.2025 22:46;