SF-3-221-620

Продам 2-кімнатну квартиру

Розташування: Київ, Дніпровський район, Микільська Слобідка, Микільсько-Слобідська вул., 13
2 Кімнат
69 м2
25/26 поверх
Ціна
130 000 $

Інформація

Розкішна видова квартира в ЖК “Русанівська Гавань”, вул. Микільсько-Слобідська, 13
Найкраща пропозиція!
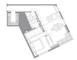
Пропонуємо до вашої уваги ексклюзивну 2-кімнатну квартиру площею 70 м², розташовану на 25 поверсі з неймовірним панорамним краєвидом на Дніпро та правий берег Києва.
Квартира двостороння, з великими панорамними вікнами — звідси відкривається захопливий вид на Батьківщину-Мати, церкву та житлові комплекси Сонячна Рів’єра і Галактика.
Переваги комплексу
Будинок обладнаний генератором, який забезпечує безперебійну роботу ліфтів, водопостачання та освітлення у спільних зонах.
Закрита охоронювана територія, підземний паркінг, сучасні зони відпочинку.
Розвинена інфраструктура: поруч кафе, ресторани, супермаркети, аптеки, відділення Нової пошти, футбольне поле, власна набережна.
Зручне розташування — 5 хвилин до метро Лівобережна.
Стан квартири
Частково виконано ремонт:
• виконана стяжка по всій квартирі
• розведена електрика
• плитка частково покладена
• ламінат частково укладений
• тепла підлога
• встановлені міжкімнатні двері
• встановлена кухонна стінка
частковий ремонт

130 000 $ вартість об'єкта
1 884 $ ціна за м2
69 м2
2 кімнат
25 Поверх
26 К-ть поверхів

Параметри

центральна Вода:
центральне Опалення:

Додатково

Дата оновлення інформації: 30.01.2026 22:53;