SF-3-229-689

Продам 3-кімнатну квартиру

Розташування: Київ, Святошинський район, Борщагівка, Сосніних Сім'ї вул., 12
3 Кімнат
60 м2
7/9 поверх
Ціна
65 000 $

Інформація

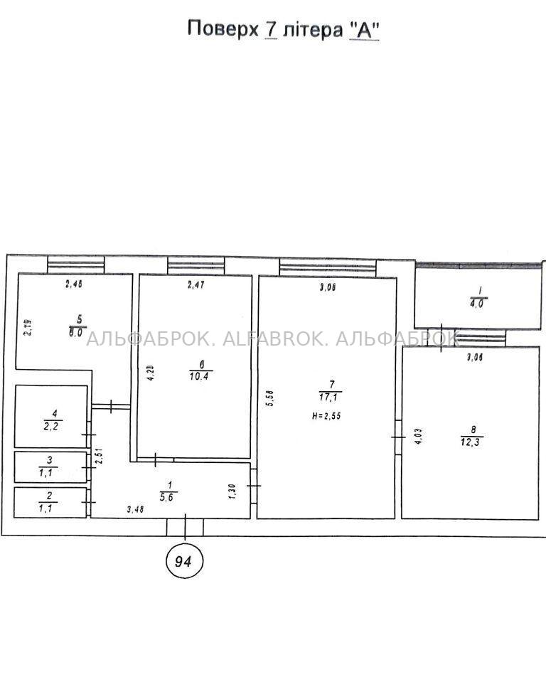
Продаж 3к квартири на вул. Івана Дзюби 12. Розташована на 7/9 поверх, площа 60 м² (житлова - 39, 8 м², кухня - 7 м²). Стан: задовільний/під ремонт. Будинок 1969 р., з/б панель. Опалення централізоване. Гаряча вода централізована + бойлер. Двофазний лічильник електроенергії. Балкон, зелений двір, поруч школа, садок, магазини, аптека, АТБ (50 м). 5 хв пішки до зупинки швидкісного трамваю.
Документи під продаж готові.

65 000 $ вартість об'єкта
1 083 $ ціна за м2
60 м2
3 кімнат
7 Поверх
9 К-ть поверхів

Параметри

центральна Вода:
центральне Опалення:
панель Матеріал стін:

Додатково

Дата оновлення інформації: 26.10.2025 00:56;