SF-3-235-772

Продам 3-кімнатну квартиру

Розташування: Київ, Солом'янський район, Відрадний, Героїв Севастополя вул., 17
3 Кімнат
50 м2
5/5 поверх
Ціна
3 100 000 ₴

Інформація

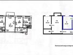
Продаж 3к квартири 50 кв. м на вул. Академіка Шалімова 17. Поверх: (5) Будинок: панельна 5 поверхівка Загальна площа: 50 м² Статус: Без обтяжень. Планування: Квартира перепланована у дві окремі однокімнатні смарт-квартири. Несучі стіни не змінювались узгодження не потрібне. Вся проводка с коридора до счетчика и от счетчика к розеткам, светильникам и выключателям заменена на новую медную. Смарт 1 (чорний контур на плані): 9 м² | Кімната 15 м² | Кухня 7 м² Туалет і душова сміжні Балкон Окремий вхід Компактна та функціональна Смарт 2 (синій контур): 9 м² | Кімната 7 м² | Кухня Туалет та душ роздільні Окремий вхід Простора, світла, зручне зонування Без балкону У кожній квартирі стоїть бойлер і лічильники води і світла. Готовий дохід: Обидві смарт-квартири здані в оренду Пасивний дохід з першого дня Надійні квартиранти можна зберегти діючі договори Деталі та перегляд за телефоном. Ідеальний варіант для інвестиції або поєднання життя доходу

3 100 000 ₴ вартість об'єкта
62 000 ₴ ціна за м2
50 м2
3 кімнат
5 Поверх
5 К-ть поверхів

Параметри

центральна Вода:
центральне Опалення:
панель Матеріал стін:

Додатково

Дата оновлення інформації: 08.01.2026 18:32;