SF-3-237-010

Продам 3-кімнатну квартиру

Розташування: Київ, Деснянський район, Троєщина, Рональда Рейгана вул., 30А
3 Кімнат
72 м2
4/16 поверх
Ціна
75 000 $

Інформація

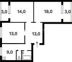
Продажа 3к, Драйзера 30а, 72м2-Состояние с ремонтом, частично меблирована, частично под косметический ремонт, с/у раздельный, комнаты отдельные. Две просторных лоджии, застеклены, Дом постройки 1984, серия КТ с квадратным коридором. Рядом школа, садик, бювет, парк, трц район, две форы, стадион, кинотеатр Флоренция, McDonald's. 2 лифта (обычный + грузовой, рабочие) + пологий новый пандус

75 000 $ вартість об'єкта
1 042 $ ціна за м2
72 м2
3 кімнат
4 Поверх
16 К-ть поверхів

Параметри

центральна Вода:
центральне Опалення:

Додатково

Дата оновлення інформації: 06.11.2025 21:19;