SF-3-302-136

Продам 2-кімнатну квартиру, ЖК 4U

Розташування: Київ, Академмістечко, Святошинський район, Новобіличі, Олега Мудрака вул., 2Б
2 Кімнат
47 м2
19/27 19
Ціна
97 700 $

Інформація

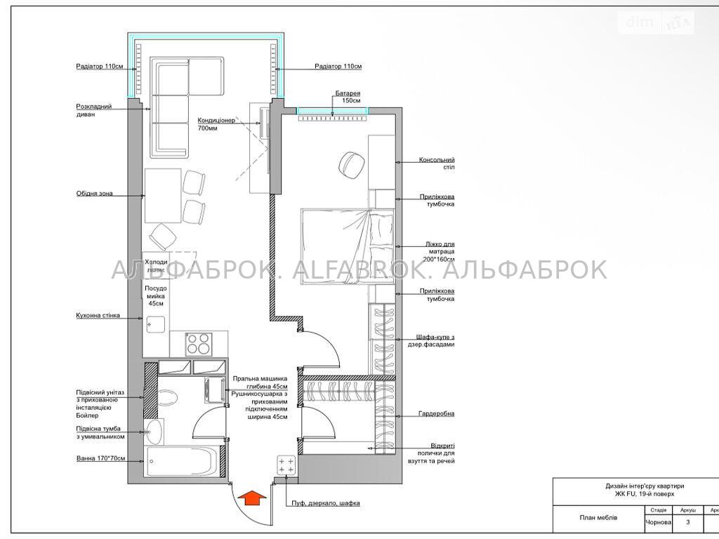
Продаж затишної євродвушки, загальна площа 47, 3 м² з дизайнерським ремонтом у ЖК «4U», 19 поверх. Запрошую до перегляду світлу та продуману євродвушку з окремою спальнею і просторою кухнею-студією. Квартира виконана з душею ремонт робився «як для себе», з якісних матеріалів і дотриманням усіх технологій. Основні характеристики: Загальна площа: 47, 3 м² Поверх: 19 (гарний вид) Секція: 2 Що зроблено в квартирі: Стильний дизайнерський ремонт бізнес-класу Якісна сантехніка, електрика, та вся інженерія Тепла підлога Приємна LED-підсвітка в спальні та у лоджії Великий зручний вбудований гардероб Сучасний вбудований холодильник з Wi-Fi Квартира повністю готова до життя заїжджайте і насолоджуйтесь комфортом. Переваги будинку: Будинок зданий У ЖК працює генератор 3 швидкісні ліфти, консьєрж, закрита територія Підготовлене місце для встановлення інвертора та системи безперебійного живлення Локація: ЖК «4U», вул. Олега Мудрака 1 (раніше Академіка Булаховського, 2) Зручне розташування поруч зі станцією метро «Академмістечко». Магазин, парк, та вся необхідна інфраструктура. Адреса будинку: Олега Мудрака (Генерала Наумова) улица, 2Б

Інфраструктура

Громадський транспорт: метро - Академмістечко (15 хв. пішки);
97 700 $ вартість об'єкта
2 066 $ ціна за м2
47.30 м2
2 кімнат
19 Поверх
27 К-ть поверхів

Параметри

центральна Вода:
центральне Опалення:

Додатково

Дата оновлення інформації: 08.04.2026 15:03;