SF-715-065

Продам 3-кімнатну квартиру в новобудові

Розташування: Київ, Оболонь, Подільський район, Куренівка (Подільський), Садовського Миколи вул., 12
3 Кімнат
74 м2
10/10 поверх
Ціна
91 700 $

Інформація

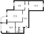
Продам 3-к. квартиру в Подольском р-н., Куреневка, ул.Садовского,12. 10 этаж / 10 этажного дома, есть тех этаж над кварттрой. Общая площадь 74/38/14 м2.
Дом 2000 года. Расположен в очень тихом и зеленом раене. Квартира светлая и теплая. Окна выходят на две стороны. Квартира жилая, требует ремон. Окна пластиковые, лоджия присоединена к кухне, балкон застеклен и обшит деревом, межкомнатные двери деревянные, в ванной и на кухне плитка. В ванной комнате зеркальный потолок.
Квартира находиться на верхнем этаже, есть возможность достроить второй этаж, на площадке кладовая.
Развита инфраструктура, в пешей доступности супермаркеты АТБ, Приорка, Куреневский рынок, есть школа и детский сад.
Удобная транспортная развязка, рядом метро Почайна, Контрактова площа, Лукьяновка, остановка троллейбуса и маршрутного такси. ПРАВО СОБСТВЕННОСТИ НА РУКАХ!
Комиссию АН оплачивает покупатель.

Інфраструктура

Громадський транспорт: метро - Оболонь (23 хв. на транспорті);
Заклади освіти: школа, дитсадок;
Банківськи послуги: відділення банку, банкомат, термінал прийому платежів, пункт обміну валют;
Побутовий сервіс: мінімаркет, супермаркет, торгівельний центр, ринок, парковка перед будинком, аптека, клініка, перукарня, пошта, хімчистка;
Релаксаційні сервіси: дитячий майданчик;
91 700 $ вартість об'єкта
1 239 $ ціна за м2
74 м2
3 кімнат
10 Поверх
10 К-ть поверхів

Параметри

центральна Вода:
є Газ:
центральне Опалення:
холодна вода, гаряча вода Лічильники:
виділена лінія Інтернет:
кабельне ТБ Телебачення:
цегла Матеріал стін:

Доброустрій

Краєвид із вікна: двір, вулиця, парк (сад);
Додатково: меблі;
Безпека: домофон, кодовий замок;

Додатково

Дата оновлення інформації: 05.02.2026 13:08;