Це оголошення уже закрито

SH-111-304

Продам 2-поверховий таунхаус

Розташування: Погреби, Київська область, Броварський район, Софіївська вул., 10
4 Кімнат
147 м2
2 сот.
Ціна
89 000 $

Інформація

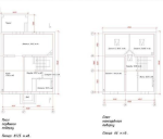
Продається двоповерховий 4-х кімнатний таунхаус з терасою у закритому котеджному містечку для цілорічного проживання за 3 км від Києва у селищі Погреби (за районом Троєщина). Площа будинку – 147 кв.м. + 12 кв.м (тераса). Перший поверх - кухня (19,8 м.кв), бойлерна (5,18), гостьовий з/в, вбиральня, вітальня (28,17 м.кв) з виходом на терасу ( 13 м.кв). Другий поверх - 1 спальня (17,42 м.кв), 2 спальні (13,66 м.кв), з/в (8,38), вбиральня.
Земельна ділянка + 2,2 сотки. У будинок заведено всі комунікації: • Електрика 5 кВт (є документи). Газ (є документи). Каналізація - (індивідуальний переливний БІО - септик 3 м.куб). Вода - (свердловина 55 метрів). Як побудований таунхаус: Стіни - цегла / газоблок Перекриття - залізобетон. Кроквяний дах, покритий полімерпіщаною черепицею. Вікна – енергозберігаючі двокамерні склопакети REHAU. Утеплений фасад. Стіни, стеля – штукатурка, підлога – стяжка. Броньовані двері. Будівництво завершено, об'єкт введено в експлуатацію, готові документи. У пішій доступності від таунхауса: Два продуктові магазини. Сауна, ресторан, Школа, Дитячий садок, Озеро, Річка Десна, Ліс. Ділянка та документи: Цільове призначення - будівництво житлового будинку. Право власності додому. Державний акт на землю на кожну ділянку – 2,2 сотки. Документи на електроенергію, газ.

89 000 $ вартість об'єкта
605 $ ціна за м2
147 м2
2.10 сот.
4 кімнат
2 К-ть поверхів

Параметри

свердловина Вода:
є Газ:
автономне Опалення:
місцева Каналізація:
цегла Матеріал стін:
залізобетон Матеріал перекриттів:
асфальт Під’їздна дорога:

Додатково

СВИДЕТЕЛЬСТВО ПРАВО СОБСТВЕННОСТИ. Есть беспроцентная рассрочка от застройщика на 2 года при первоначальном взносе от 40%!

Покриття ділянки: тротуарна плитка;
Власність: приватна;
Дата оновлення інформації: 27.06.2023 16:04;