SH-148-066

Продам 2-поверховий будинок

Розташування: Гатне, Київська область, Фастівський район, Кленова вул., 10
6 Кімнат
191 м2
6 сот.
Ціна
220 000 $

Інформація

Продажа нового двух этажного дома в с. Гатное, Киево-Святошинкий (Фастовский) р-н. Расположен в 4 км. от метро Теремки.
Дом построен 2021 году и сейчас находится на финальном этапе работ. Общая площадь дома - 191 кв. м. жилая - 82,5 кв. м..
Построен из газоблока плотностью 300 мм. и утеплен 20 см. минеральной ватой. Межкомнатные перегородки из кирпича. Фундамент - монолитный.
На момент продажи внутри дома будет выполнена чистовая отделка с разводкой электро проводки и теплыми полами. Внешне - декоративная штукатурка.
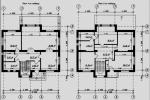
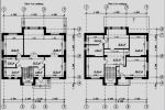
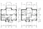
На первом этаже - просторная прихожая, котельная, гостевая спальня или кабинет, с/у и большая кухня - гостиная - 50 кв. м. с выходом на террасу.
На втором этаже - холл, четыре просторных спальни одна из которых с балконом и два с/у.
Коммуникации: вода - скважина - 42 м., канализация - септик (две ямы с переливом), заведено 12кВ электричества. Газ проходит по улице.
Дом построен на участке 6 соток. Подъездная дорога асфальтирована и 200 м грунтовой дороги.
В пешей доступности - озеро с парковой зоной, школа, детский сад, спортивные и детские площадки, ТРЦ, строительный гипермаркет и т. д. метро "Теремки" - 4 км. от дома.

Інфраструктура

Заклади освіти: школа, дитсадок;
Банківськи послуги: відділення банку, банкомат, термінал прийому платежів, пункт обміну валют;
Побутовий сервіс: мінімаркет, супермаркет, ринок, парковка перед будинком, аптека, клініка, перукарня, хімчистка;
Релаксаційні сервіси: фітнес центр, більярд, сауна, басейн, парк (сад), дитячий майданчик, ліс, озеро / річка, море;
Обʼєкти громадського харчування: кафе, ресторан, фастфуд, бар;
220 000 $ вартість об'єкта
1 152 $ ціна за м2
191 м2
6 сот.
6 кімнат
2 К-ть поверхів

Параметри

свердловина Вода:
немає Газ:
автономне Опалення:
місцева Каналізація:
виділена лінія Інтернет:
оптоволокно Телебачення:
металочерепиця Дах:
газоблок Матеріал стін:
залізобетон Матеріал перекриттів:
насип Під’їздна дорога:

Стан об’єкта

Проводина: мідь;
Вікна: металопластик;

Доброустрій

Краєвид із вікна: двір;
Підігрів підлоги: водяний;
Водонагрівач: електричний;

Додатково

Покриття ділянки: без покриття;
Дата оновлення інформації: 06.08.2025 22:29;