SH-204-010

Продам 2-поверховий будинок

Розташування: Київ, Іподром, Голосіївський район, Віта-Литовська, Бродівська вул.
6 Кімнат
360 м2
5 сот.
Ціна
590 000 $

Інфраструктура

Громадський транспорт: метро - Іподром;
590 000 $ вартість об'єкта
1 639 $ ціна за м2
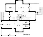
360 м2
5 сот.
6 кімнат
2 К-ть поверхів

Параметри

є Газ:

Додатково

Дата оновлення інформації: 08.10.2025 22:33;