SH-212-854

Продам 2-поверховий будинок

Розташування: Київ, Шевченківський район, Сирець, Тираспольська вул.
4 Кімнат
120 м2
3 сот.
Ціна
79 000 $

Інформація

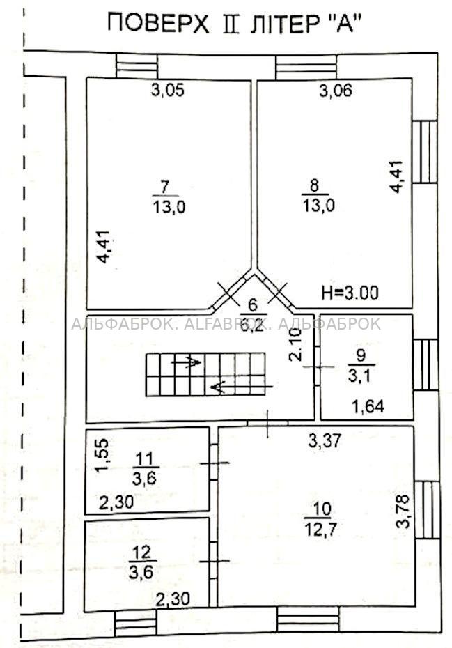
До Вашоі уваги пропонується продаж будинку 120 м.кв. з виходом в Сирецький гай.
Будинок розташовано по вулиці Тираспольська.
Найьлижчі станціі метро - Нивки та Сирець.
Будинок 120 м.кв. з виходом в Сирецький гай, Тираспольська, Садовий кооператив «Тюльпан-1».
Площа - 120/66/12 м.кв., цегла, після будівельників, цоколь і 2 поверхи, скважина, септик, електрика.
Ділянка 3,1 соток.
Гарні сусіди, закрита територія, територія виходить до лісу Сирецького гаю та струмку Курячий Брід.
Поряд ЖК Сирецькі сади та Місто квітів, Сирецький дендрологічний парк, школи та садочки.
Добре розвинена інфраструктура та транспортна розв'язка.

79 000 $ вартість об'єкта
658 $ ціна за м2
120 м2
3 сот.
4 кімнат
2 К-ть поверхів

Параметри

немає Газ:

Додатково

Дата оновлення інформації: 24.09.2025 17:29;