SH-220-371

Продам 2-поверховий будинок

Розташування: Київ, Святошинський район, Біличі, Сулимівська вул.
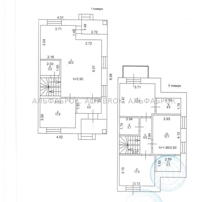
5 Кімнат
117 м2
4 сот.
Ціна
160 000 $

Інформація

Продам будинок (Дуплекс) біля лісу в межах міста Києва , зданий в експлуатацію в 2021 р.,
Ви отримаєте: керамічні цегляні стіни, утеплювач мінеральна вата, вентильований фасад з клінкерної цегли, залізо-бетонні перекриття над першим і другим поверхом, мансарда в подарунок (площа мансарди не входить в площу будинку), власна земельна ділянка, місце для стоянки автомобіля, закрита вулиця для мешканців котеджного містечка, індивідуальний двухконтурний газовий котел BOSCH, газопровід під встановлення плити.

160 000 $ вартість об'єкта
1 368 $ ціна за м2
117 м2
3.80 сот.
5 кімнат
2 К-ть поверхів

Параметри

свердловина Вода:
є Газ:
газове Опалення:
септик Каналізація:
цегла Матеріал стін:

Додатково

Дата оновлення інформації: 11.03.2026 11:38;