Персональний сайт рієлтора

рієлтор - Алла

Вітаю! Буду рада допомогти з купівлею чи продажем нерухомості. Телефонуйте!
АН Альфаброк працює з 2008р. Маємо свою Торгівельну Марку «Альфаброк». В нашій базі більше 6 000 унікальних, не дублюючих об’єктів. Більше 10 років займаюсь купівлею та продажем нерухомості. Буду рада докласти всі зусилля, навики та весь свій досвід. Перевіримо документи перед угодою! Телефонуйте.
SH-141-542

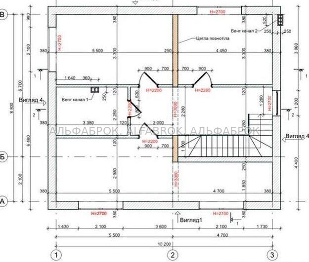
Продам 2-поверховий будинок

Розташування: Київ, Голосіївський район, Конча-Заспа, Столичне шосе
5 Кімнат
170 м2
6 сот.
Ціна
190 000 $

Інформація

Продам дом в Конча- Заспа 170 м.
• Лаконичный элегантный стиль архитектуры
• Собственный земельный участок 6 соток
• Благоустроенная территория с выходом к воде – зона Fireplace
• Асфальтированный подъезд, все коммуникации (газ, свет, вода (скважина), септик)
• 2 паркоместо
Технология строительства:
стены – кирпич 2НФ
кровля - плоская мембрана
фасад - вентфасад из плитки + жесть с полимерным покрытием
двери и вход.группа - алюминиевые.
Благоустройство территории, дорожки - ФЕМ; забор;
Все коммуникации - подключены.- газ. свет. вода. септик
Все инфраструктура: школа, сад, магазины, рестораны, База Динамо Киев, Олимпийская База Конча-Заспа. ПРАВО СОБСТВЕННОСТИ БУДЕТ ОФОРМЛЯТЬСЯ НА ПОКУПАТЕЛЯ.

Інфраструктура

Заклади освіти: школа, дитсадок;
Банківськи послуги: відділення банку, банкомат, термінал прийому платежів, пункт обміну валют;
Побутовий сервіс: мінімаркет, супермаркет, парковка перед будинком, аптека;
190 000 $ вартість об'єкта
1 118 $ ціна за м2
170 м2
6 сот.
5 кімнат
2 К-ть поверхів

Параметри

центральна Вода:
є Газ:
електричне Опалення:
центральна Каналізація:
холодна вода, гаряча вода Лічильники:
виділена лінія Інтернет:
зовнішня антена Телебачення:

Додатково

Власність: приватна;
Дата оновлення інформації: 27.03.2026 16:57;