Персональний сайт рієлтора

рієлтор - Лариса

Вітаю Вас. Телефонуйте, у нас найбільший каталог нерухомості.
АН Альфаброк работает на рынке с 2008г. Зарегистрирована своя Торговая Марка Альфаброк! В нашей базе более 5 000 уникальных, не повторяющихся объектов.
Я давно занимаюсь покупкой, продажей и арендой недвижимости. Буду рада приложить все свои навыки и опыт. Проверим документы перед сделкой!

Інформація в цьому оголошенні застаріла

SF-2-573-930

Продам 3-кімнатну квартиру, ЖК Бережанський

Розташування: Київ, Мінська, Оболонський район, Оболонь, Бережанська вул., 15
3 Кімнат
92 м2
3/25 поверх
Ціна
80 900 $

Інформація

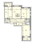
3 кімнатна квартира в Києві, в ЖК "Бережанський" , за адресою вул. Бережанська,15 пропонується до продажу.
Квартира знаходиться в 9-му будинку - це цегляний будинок комфорт-класу , збудований з високоякісних матеріалів : мідна проводка, штукатурка, стяжка.
Будинок утеплений мінеральною ватою, з гарною шумоізоляцією, подвійним склопакетом вікон.
9 секція введена в єкспалацію з 3 квітня 2021 року.
Площа квартири 92/49/11кв.м.
Поверх 3/9 .
В квартирі є лоджія, встановлені металеві двері, лічильники на опалення, електрику та воду.
Підземний паркінг у комплексі розрахований на 250 авто+ достатню кількість паркомісць по території ЖК.

Поруч розташований дитячий садок, школа, аптеки. У кроковій доступності знаходяться супермаркети Сільпо, АТБ, ФОРА.
Закрита затишна приватна територія ЖК дозволяє гуляти територією, яка найближчим часом буде облаштована, насаджена деревами.
Дуже зручна транспортна розв'язка.

Поруч розташовані такі вулиці: Автозаводська, Вишгородська, Западинська, Пріорська, Ярослава Івашкевича.
Готові розглянути продаж по іпотечним прошграмам.

Інфраструктура

Громадський транспорт: метро - Мінська (40 хв. пішки, 25 хв. на транспорті);
80 900 $ вартість об'єкта
879 $ ціна за м2
92 м2
3 кімнат
3 Поверх
25 К-ть поверхів

Параметри

центральна Вода:
центральне Опалення:

Доброустрій

Краєвид із вікна: двір;

Додатково

Переуступка. Переуступка 2 відсотка плюс до вартості

Дата оновлення інформації: 11.06.2024 12:29;