Персональний сайт рієлтора

рієлтор - Лариса

Вітаю Вас. Телефонуйте, у нас найбільший каталог нерухомості.
АН Альфаброк работает на рынке с 2008г. Зарегистрирована своя Торговая Марка Альфаброк! В нашей базе более 5 000 уникальных, не повторяющихся объектов.
Я давно занимаюсь покупкой, продажей и арендой недвижимости. Буду рада приложить все свои навыки и опыт. Проверим документы перед сделкой!
SF-3-178-488

Продам 3-кімнатну квартиру

Розташування: Київ, Подільський район, Виноградар, Свободи пр-т, 30А
3 Кімнат
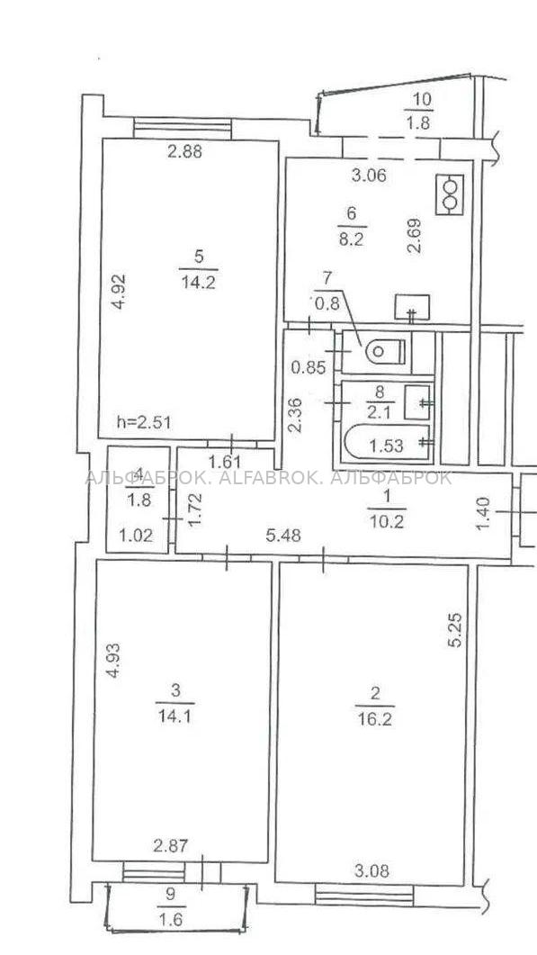
71 м2
15/16 поверх
Ціна
64 000 $

Інформація

Продається видова простора двохстороння 3-кімнатна квартира у затишному районі із розвинутою інфраструктурою. Метраж 71/44,5/10. Мікрорайон Виноградар. Проспект Свободи 30-А. Будинок із теплих керамзито-бетонних панелей. Квартира у житловому стані із необхідним набором меблів та побутової техніки. Висота стелі 2,70. Світло у будинку не відключають. У будинку працює конс'єрж та відеонагляд. На поверсі 2 послідовних тамбури спочатку на 4 а далі на 2 квартири. Можливий продаж за державними програмами по безготівковому розрахунку.

64 000 $ вартість об'єкта
901 $ ціна за м2
71 м2
3 кімнат
15 Поверх
16 К-ть поверхів

Параметри

центральна Вода:
центральне Опалення:
панель Матеріал стін:

Додатково

Дата оновлення інформації: 24.10.2025 12:00;