Персональный сайт риелтора

рієлтор - Алла

Вітаю! Буду рада допомогти з купівлею чи продажем нерухомості. Телефонуйте!
АН Альфаброк працює з 2008р. Маємо свою Торгівельну Марку «Альфаброк». В нашій базі більше 6 000 унікальних, не дублюючих об’єктів. Більше 10 років займаюсь купівлею та продажем нерухомості. Буду рада докласти всі зусилля, навики та весь свій досвід. Перевіримо документи перед угодою! Телефонуйте.
SF-3-179-161

Продам 2-комнатную квартиру

Местоположение: Киев, Печерский район, Черная Гора, Андрея Верхогляда ул., 5
2 Комнат
75 м2
7/16 этаж
Цена
295 000 $

Информация

Продаж 2-кімнатної квартири в ЖК "Новопечерські Липки" | вул. Андрія Верхогляда, 5.
Пропонується світла та стильна 2-кімнатна квартира з дизайнерським ремонтом у престижному ЖК «Новопечерські Липки». Будинок розташований у самому центрі комплексу — поруч сквер, тиха зелена зона та вся інфраструктура під рукою.
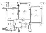
Планування та облаштування:
Окрема кухня, вітальня, спальня
Гардеробна кімната
Санвузол суміщений (туалет + ванна)
4 панорамні вікна з видом у внутрішній двір
Стелі 3 метри, роздільне планування
Оснащення:
Квартира повністю умебльована та обладнана технікою:
Телевізор, кабельне ТБ
Холодильник, посудомийна машина
Пральна машина, мікрохвильова піч
Кондиціонер, лічильники, сучасна сантехніка
Ліжко, шафа, посуд
Характеристики будинку:
Будинок монолітно-бетонний, збудований у 2010 році.
Введений в експлуатацію.
Центральне опалення, гаряча вода.
Паркінг — можливість купити або орендувати місце в цьому ж будинку.
Локація та інфраструктура:
Комплекс із закритою територією, охороною, відеоспостереженням
У пішій доступності:
- школи, дитячі садочки
- супермаркети, фітнес, кафе
- зупинки громадського транспорту
- парки та зони відпочинку

295 000 $ стоимость объекта
3 933 $ цена за м2
75 м2
2 комнат
7 Этаж
16 Этажность

Параметры

центральная Вода:
центральное Отопление:
монолитный железобетон Материал стен:

Дополнительная информация

Дата обновления информации: 29.07.2025 17:58;