Персональный сайт риелтора

рієлтор - Алла

Вітаю! Буду рада допомогти з купівлею чи продажем нерухомості. Телефонуйте!
АН Альфаброк працює з 2008р. Маємо свою Торгівельну Марку «Альфаброк». В нашій базі більше 6 000 унікальних, не дублюючих об’єктів. Більше 10 років займаюсь купівлею та продажем нерухомості. Буду рада докласти всі зусилля, навики та весь свій досвід. Перевіримо документи перед угодою! Телефонуйте.
SF-3-201-735

Продам 3-комнатную квартиру

Местоположение: Киев, Голосеевский район, Университетский городок, Голосеевский пр-т, 126, корп. 3
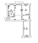
3 Комнат
56 м2
5/5 5
Цена
117 800 $

Информация

Продаж 3-кімнатної квартири з дизайнерським ремонтом

Київ, Голосіївський район, просп. Голосіївський, 126к3
Поверх: 5 із 5 (без ліфта)
Площа: 56,4 м²

Переваги квартири:

Дизайнерський ремонт у сучасному стилі, повністю готова до проживання.

Інженерія: нові труби, батареї, повна заміна електропроводки (потужний кабель, резервне підключення).

Планування:
▫️ 2 окремі спальні
▫️ Простора кухня-вітальня
▫️ Гардероб
▫️ Суміщений санвузол
▫️ Засклений балкон

Комфорт: тепла підлога (кухня та ванна), термостат з Wi-Fi, вікна Rehau 70 (шумо- та теплоізоляція), додаткова звукоізоляція, фільтр для води.

Безпека: сигналізація Ajax (підключена до Sheriff), камера спостереження на двері, відеонагляд у під’їзді та навколо будинку.

Локація:

5 хв до метро Виставковий центр — швидкий доступ у центр Києва.

Через дорогу — парк ВДНГ, чудове місце для прогулянок.

У пішій доступності: супермаркети, кафе, школи, садочки, спорткомплекси, зупинки транспорту.

Ідеальний варіант для комфортного життя !

📞 Дзвоніть, щоб домовитися про перегляд.

117 800 $ стоимость объекта
2 089 $ цена за м2
56.40 м2
3 комнат
5 Этаж
5 Этажность

Параметры

центральная Вода:
центральное Отопление:
кирпич Материал стен:

Дополнительная информация

Дата обновления информации: 03.02.2026 15:54;