Персональный сайт риелтора

рієлтор - Алла

Вітаю! Буду рада допомогти з купівлею чи продажем нерухомості. Телефонуйте!
АН Альфаброк працює з 2008р. Маємо свою Торгівельну Марку «Альфаброк». В нашій базі більше 6 000 унікальних, не дублюючих об’єктів. Більше 10 років займаюсь купівлею та продажем нерухомості. Буду рада докласти всі зусилля, навики та весь свій досвід. Перевіримо документи перед угодою! Телефонуйте.
SH-220-352

Продам 2-этажный дом

Местоположение: Белогородка, Киевская область, Бучанский район, Лесная ул., 10
5 Комнат
200 м2
12 сот.
Цена
350 000 $

Информация

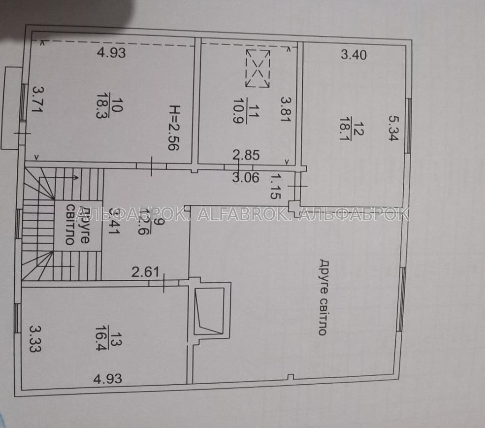
Продаж 2 поверхового будинку в Білогородці в ЖК Summervillе, для тих хто любить тишу, спокій. Загальна площа будинку 202,9 м2., житлова площа 67,1 м2, кухня - вітальна 57,5 м2-. Будинок побудований з карпацькоі смереки, дуже теплий, гарний, затишний, продуманий до дрібниць., а саме головне, будинок знаходиться у заповідній зоні, де дуже чисте повітря, де можна відпочити від всього, перезавантажитись, тим самим швидше втілювати свої мрії в життя в нашому сьогоденні.
Поряд є водойма, охорона, закрита територія.
Окремо є котельна, гараж з навісом під автомобіль.
На першому поверсі: кімната, кухня-вітальня, санвузол з душем, коридор, прихожа, кладовка ( з якої можна зробити гардероб.
На другому поверсі: 3 окремі кімнати, ванна з санвузлом, біде.
Будинок опалюється електричним котлом, також є твердопаливний котел (в якому можна використовувати дрова та пілети). Під час відключення є генератор, батареї безперебійного живлення. Септик, свердловина.
Транспортна розв'язка: в пішій доступності зупинка на Київ 20 хвилин, маршрутка їде до Києва 10 хвилин, автомобілем 15 хвилин до Києва.
Поряд знаходяться населені пункти: Горбович, Бобриця та Забор'я, Шевченково, Гнатівка, Мила, Мрія, Чайка.
Телефонуйте будь ласка, переглянемо будинок в зручний для вас час..

350 000 $ стоимость объекта
1 750 $ цена за м2
200 м2
12 сот.
5 комнат
2 Этажность

Параметры

нет Газ:

Дополнительная информация

Дата обновления информации: 09.03.2026 19:14;