SF-3-102-239

Продам 2-комнатную квартиру

Местоположение: Киев, Деснянский район, Троещина, Радунская ул., 5
2 Комнат
55 м2
2/10 этаж
Цена
50 000 $

Информация

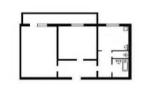
Продам двокімнатна квартира Деснянський р-н, Троєщина, вул.Радунська, 5. панельного будинку 96 серії(поліпшена), який був збудований у 1993 році. велика лоджія на 2 кімнати: 7,5 м.кв., С/В роздільний (2,7+1,3), коридор: 8,2 м.кв., тамбур на 2 квартири: 1,5 м.кв., 4 квартири на поверсі, ліфт, вікна у двір. Лічильники: Газ, Ел../Ен., вода (холодна, гаряча). Опалення централізоване. Стан житловий, що потребує ремонту. Квартира без проблем і боргів, один власник по спадщині, прописаних нема, документи у порядку. Розвинена інфраструктура та транспортне сполучення, поруч с буд. зупинка гром.транспорту у всі райони Києва, школа, дитячий садочок, торгові центри, магазини, ринок, пошта, відд. банків, тихій двір будинку, парковка, дит. площадка, у пішій доступності парк та річка Дніпро, та все ін. для комфортного проживання або використання під офіс та ведення бізнесу

50 000 $ стоимость объекта
909 $ цена за м2
55 м2
2 комнат
2 Этаж
10 Этажность

Параметры

центральная Вода:
центральное Отопление:
панель Материал стен:

Дополнительная информация

Дата обновления информации: 24.03.2025 18:58;