SF-3-256-711

Продам 1-комнатную квартиру

Местоположение: Киев, Святошинский район, Беличи, Николая Руденко бул., 14Д
1 Комнат
60 м2
12/15 этаж
Цена
86 000 $

Информация

Продаж 1 кімн квартири ЖК Парковий Біличи вул.Миколи Руденко 14Д. Поверх: 12 / 15 (видова)
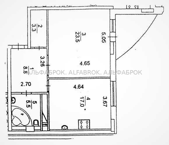
Загальна площа: 60 м²
Висота стелі: 2,80 м
Планування:
Хол — 9 м2. Кімната — 23,5 м²
Кухня-столова — 17 м²
Гардеробна — 4 м²
Тераса (лоджія) — 7 м²
Відмінний стан
Металопластикові вікна. Броньовані вхідні двері
Утеплені стіни, вентильований фасад
Тепла підлога
Лічильники холодної та гарячої води
Індивідуальний лічильник тепла
Бойлер, пральна машина
Кабельне ТБ, інтернет
Індивідуальний проєк. Монолітно-каркасний будинок з червоної цегли. Утеплення — вентильований фасад
Ліфт, консьєрж
Кодований доступ
Гостьова парковка

86 000 $ стоимость объекта
1 433 $ цена за м2
60 м2
1 комнат
12 Этаж
15 Этажность

Параметры

центральная Вода:
центральное Отопление:
монолито-каркас Материал стен:

Дополнительная информация

Дата обновления информации: 18.12.2025 16:19;