SF-3-271-636

Продам 2-комнатную квартиру

Местоположение: Киев, Дарницкий район, Позняки, Драгоманова ул., 2
2 Комнат
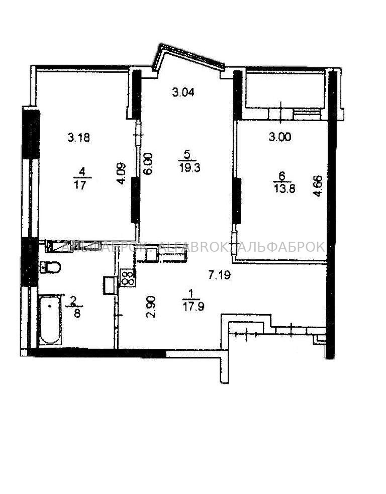
80 м2
18/25 этаж
Цена
160 000 $

Информация

Продаж 2к квартири на вул. Драгоманова 2, Позняки. Тепла електрична підлога по всій квартирі, розділена на зони включення. Супермаркет Ашан - 100м, також є Сільпо, АТБ, школи дитсадки. Поряд озеро Сонячне. Було зроблене невелике перепланування для об'єднання кухні та салона. В коридорі, біля квартири стоїть фільтр на воду, а в квартирі фільтр зворотного осмосу. В квартирі встановлена сигналізація з виходом на пульт охорони МВС. Під час відключення електроенергії працює ліфт, є гаряча вода та опалення. техніка Bosch.

160 000 $ стоимость объекта
2 000 $ цена за м2
80 м2
2 комнат
18 Этаж
25 Этажность

Параметры

центральная Вода:
центральное Отопление:
монолито-каркас Материал стен:

Дополнительная информация

Дата обновления информации: 29.01.2026 23:41;