SF-3-292-593

Продам 2-комнатную квартиру

Местоположение: Киев, Оболонский район, Оболонь, Оболонский пр-т, 10
2 Комнат
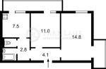
47 м2
4/9 4
Цена
65 000 $

Информация

Затишна 2-х кімнатна квартира Оболонь прос-т Оболонський 10 готова для проживаня. В квартирі є два балкони, один з яких засклений. Встановлені лічильники на гарячу та холодну воду, електроенергію. У квартирі залишаються всі меблі та побутова техніка (пральна машина, холодильник, витяжка, кондиціонер, телевізор). Інфраструктура: поряд школа, дитячий садок, поліклініка, супермаркет Велмарт, торговий центр Dream yellow. Дві хвилини пішки до станції метро "Оболонь". Зручний доїзд до будь-якої точки міста. Ціна: 65000 USD Київ, Оболонський просп., 10, ; Чеський проект; стіни: панель; перекриття: залізобетон; поверховість: 9; кількість виходів: 4; гараж; транспорт: ст.М"Оболонь"; будинок 1974 року, гарний стан, Н=2.55м, під'їзди середні, кодовий замок, парковка безкоштовна, магазин, поруч "Dream Town", "Метрополіс", "Велика Кишеня", "Новус", пошта

65 000 $ стоимость объекта
1 383 $ цена за м2
47 м2
2 комнат
4 Этаж
9 Этажность

Параметры

центральная Вода:
центральное Отопление:

Дополнительная информация

Дата обновления информации: 17.03.2026 13:56;